[東大阪市] 元:衣服卸売業者... | 大阪で倉庫・工場をお探しなら物件ハンターにお任せください!

Detail物件詳細
物件番号
10930
[東大阪市] 元:衣服卸売業者の倉庫 約450坪の大型倉庫
Loading
賃料
1,980,000円(税込)
共益費
0円(税込)
敷金 / 礼金
0円 / 0
保証金
6,000,000
解約引
-
物件番号
10930

    物件詳細

    物件公開日
    2025年09月19日
    築年月
    1992年03月
    物件種別
    倉庫・事務所
    所在地
    大阪府東大阪市吉田本町3丁目
    アクセス
    近鉄けいはんな線 『吉田』駅 徒歩5分
    近鉄奈良線 『東花園』駅 徒歩27分
    接道状況
    一方通行
    IC
    IC 水走 4分
    坪単価
    【賃料】4,400円
    【管理費】0円
    坪数
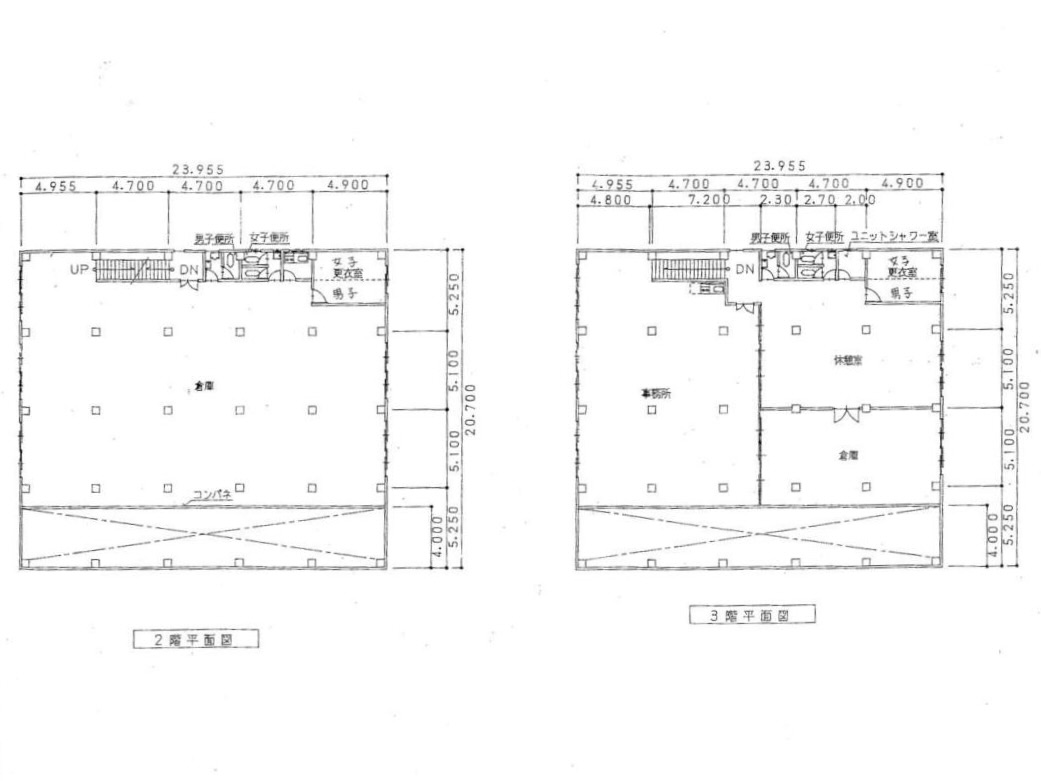
    450坪 (1487.61㎡)
    敷地面積
    826.12㎡
    建物構造
    鉄骨造 / 3階建 一棟
    現況
    空室
    引渡し時期
    即日
    取引態様
    仲介(媒介)
    用途地域
    準住居地域
    前面道路幅員
    10m
    備考
    #100坪以上#200坪以上#リフト(EV)有#事務所付き#大型倉庫#大型車両侵入可能#天井高5m以上#駅近#駐車場付き#高速IC近く

    東大阪市の大型倉庫です。

    鉄骨造3階建て 元:衣服の卸売業者の倉庫です。

    前面道路は一方通行の3車線(幅員10m)

    大型貨物車両の進入も可能です。

    敷地内に駐車スペースもあります。

    トイレ、シャッター、電動シャッター、電気、上水道、下水道、リフト付き

    お問い合せ、お待ちしております!!

    06-6786-8690
    06-6786-8690
    受付 10:00〜18:00日曜日・祝日定休
    メールお問い合わせ
    メールお問い合わせ
    LINEお問い合わせ
    LINEお問い合わせ

    Page top

    Page top

    LINEで物件お問い合わせ

    「LINEお問い合わせ」ボタンを押すと、トーク画面が開きますので、以下のお問い合わせ番号をコピーして送信してください。
    お電話番号も一緒にお送り頂くとより迅速な対応が可能です。

    LINEお問い合わせ
    LINEお問い合わせ

    ※初回のみ、弊社を「友だちリスト」に追加してください。

    CLOSE