[我孫子] 元:化粧品製造工場... | 大阪で倉庫・工場をお探しなら物件ハンターにお任せください!

Detail物件詳細
物件番号
11032
[我孫子] 元:化粧品製造工場(クリーンルーム付き)
Loading
賃料
880,000円(税込)
共益費
0円(税込)
敷金 / 礼金
5,000,000円 / 1,650,000円(税込)
保証金
0
解約引
-
物件番号
11032

    物件詳細

    物件公開日
    2025年09月23日
    築年月
    築不詳
    物件種別
    倉庫・工場・事務所
    所在地
    大阪府大阪市住吉区杉本1丁目
    アクセス
    阪和線(天王寺~和歌山) 『杉本町』駅 徒歩7分
    大阪メトロ御堂筋線 『あびこ』駅 徒歩10分
    接道状況
    両面通行
    IC
    IC 鉄砲 11分
    坪単価
    【賃料】3,800円
    【管理費】0円
    坪数
    231.55坪 (765.47㎡)
    敷地面積
    383.47㎡
    建物構造
    鉄骨造 / 3階建 一棟
    現況
    賃貸中
    引渡し時期
    相談
    取引態様
    仲介(媒介)
    用途地域
    前面道路幅員
    6.0m
    備考
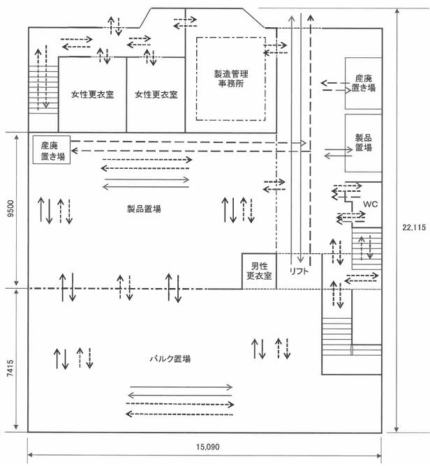
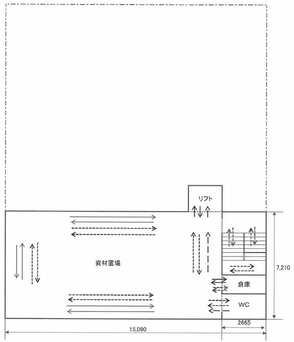
    #100坪以上#200坪以上#リフト(EV)有#事務所付き

    住吉区の元:化粧品工場跡

    ク リ ー ン ル ー ム あ り ( 米 国 連 邦 規 格 1 0 0 , 0 0 0 ISO ク ラ ス 8 )

    現状有姿、現状渡し

    内覧可能です。

    お問い合せ、お待ちしております!!

    06-7777-7421
    06-7777-7421
    受付 10:00〜18:00日曜日・祝日定休
    メールお問い合わせ
    メールお問い合わせ
    LINEお問い合わせ
    LINEお問い合わせ

    Page top

    Page top

    LINEで物件お問い合わせ

    「LINEお問い合わせ」ボタンを押すと、トーク画面が開きますので、以下のお問い合わせ番号をコピーして送信してください。
    お電話番号も一緒にお送り頂くとより迅速な対応が可能です。

    LINEお問い合わせ
    LINEお問い合わせ

    ※初回のみ、弊社を「友だちリスト」に追加してください。

    CLOSE