[我孫子] 元:化粧品製造工場(クリーンルーム付き) | 大阪・兵庫・京都で倉庫・工場をお探しなら物件ハンターにお任せください!

フリーワード検索

沿線・駅
市区町村

賃料を選択 賃料を選択

坪数を選択 坪数を選択

カテゴリーを選択 カテゴリーを選択

複数選択可能

複数選択可能

カテゴリー一覧

カテゴリー一覧

Property List物件一覧
表示順:

[我孫子] 元:化粧品製造工場(クリーンルーム付き)

大阪府大阪市住吉区杉本1丁目
阪和線(天王寺~和歌山) 『杉本町』駅 徒歩7分
IC 鉄砲 11分

880,000 円(税込)

231.55 (765.47㎡)

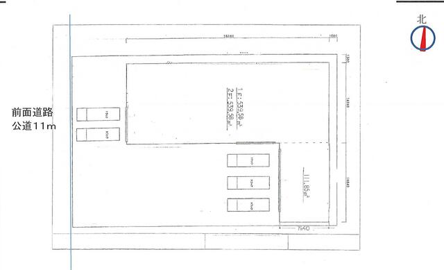
住吉区の元:化粧品工場跡 ク リ ー ン ル ー ム あ り ( 米 国 連 邦 規 格 1 0 0 , 0 0 0 ISO ク ラ ス 8 ) 現状有姿、現状渡し 内覧可能です。 お問い合せ、お待ちしております!!

[西天満] 老松通りの一棟貸しビル ※リフト付き(店舗・事務所・倉庫)飲食店も応相談

大阪府大阪市北区西天満4丁目
大阪メトロ谷町線 『東梅田』駅 徒歩8分
IC 堂島 6分

2,800,000 円(税込)

146.49 (484.29㎡)

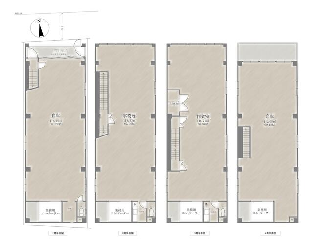
大阪市北区西天満 老松通りに立地する、1棟貸ビルです。 〈面積〉 1階130.54㎡ 2階132.99㎡ 3階132.99㎡ 4階120.25㎡ 合計延床516.77㎡(公簿面積)ですので現状優先 貨物用リフト付きで、1階天井高約4m 24時間利…

[此花区] リフォーム済みの大型貸工場・倉庫(ホイストクレーン5t付き)

大阪府大阪市此花区常吉2丁目
JRゆめ咲線 『安治川口』駅 徒歩52分
IC 湾岸舞洲 5分

1,650,000 円(税込)

209.3 (692㎡)

阪 神 高 速 5 号 湾 岸 線 湾 岸 舞 洲 出 入 口 よ り 約 3 . 5 k m 常吉大橋近くの大型貸工場・倉庫です。 リフォーム済みで綺麗になっています! ■ 電 動 シ ャ ッ タ ー 新 品 交 換 ■ 床 コ ン ク リ ー ト 打 ち 直 し ■…

[東大阪市・吉田] 一棟貸の大型倉庫

大阪府東大阪市中新開2丁目
近鉄けいはんな線 『吉田』駅 徒歩8分
IC 水走 3分

1,980,000 円(税込)

323.0 (1085.00㎡)

東大阪市・吉田に立地する、大型倉庫です。 延床面積 323.0坪 駐車場スペース約110坪 ■前道 公道12m(歩道2.5m有) ■シヤッター2ヵ所(W-5.3mH-3.6m) ■1F 天井高4.5m~ ■玄関庇D-5.0m □令和7年10月末退去予定 ※10月末より外壁工事 入居時…

[出島浜] 元:レンタカー タクシー会社・操車場・駐車場にオススメ!

大阪府堺市堺区出島浜通
南海本線 『湊』駅 徒歩8分
IC 出島 5分

1,100,000 円(税込)

17.64 (58.32㎡)

堺市堺区出島浜の海岸通り沿いに立地する、 事務所付きの貸土地物件です。 前は黄色のマークのレンタカー屋さんが入っておられました。 土地面積:約303.23坪 ・タクシー会社さん ・レンタカー屋さん ・各種操車場 ・駐車場 にオススメです。 お問い…

[百舌鳥] 2階建:駐車場付きの倉庫事務所

大阪府堺市北区百舌鳥陵南町3丁
阪和線(天王寺~和歌山) 『上野芝』駅 徒歩21分
IC 平井 11分

770,000 円(税込)

99.64 (329.42㎡)

百舌鳥の一棟貸倉庫事務所です。 住居エリアにつき、工場は不可 音や匂いの出るものも不可です。 *大型車両進入可能物件 *幹線道路(泉北1号線、ときはま線)へのアクセス良好 *駐車場広々、希少な大型車両進入可能物件。2階事務所有り 営業所として最適物件です。 …

[岸里] 高速高架沿いの一棟貸:倉庫事務所(約140坪)

大阪府大阪市西成区千本南2丁目
大阪メトロ四つ橋線 『岸里』駅 徒歩12分
IC 玉出 3分

550,000 円(税込)

139.57 (461.40㎡)

大阪市内の一等貸し、小規模倉庫事務所です。 現状有姿、現状渡しです。 改装はOK 業種、用途はご相談ください!! お問い合せ、お待ちしております!!

[富田林] 一棟貸:駐車場&事務所付きの倉庫・工場 ※24時間利用OK

大阪府富田林市中野町東1丁目
近鉄長野線 『喜志』駅 徒歩22分
IC 羽曳野 10分

600,000 円(税込)

66.85 (221.00㎡)

富田林市の立地する、平屋一棟貸しの倉庫・工場です。 羽曳野ICまで車で10分 敷地内に駐車スペース(約3台分)あり 建物内に事務所も有 24時間利用OKです。 お問い合せ、お待ちしております!!

[平林] 駐車場付き大型倉庫 材木倉庫などにオススメです

大阪府大阪市住之江区平林北2丁目
大阪メトロ南港ポートタウン線 『平林』駅 徒歩15分
IC 南港中 10分

1,408,000 円(税込)

190.92 (631.17㎡)

平林北2丁目 工業専用地域です。 2025年9月末退去予定 ・倉庫の道路側は高床式・倉庫南側に空地約150坪有り ・倉庫に一部2階部分がありますが、原則使用禁止となります。 お問い合せ、お待ちしております!!

[南巽] 駐車場付き 貸工場・倉庫

大阪府大阪市平野区加美北3丁目
大阪メトロ千日前線 『南巽』駅 徒歩7分
IC 八尾 15分

1,980,000 円(税込)

262.7 (868.26㎡)

加美北の駐車場付大型倉庫・工場です。 1F:679.845㎡+2F:188.415㎡、別途:空地約151㎡ 【稀少な駐車場付き貸工場倉庫】 前面スペースが約45.7坪あり、車でのアプローチに便利です。 内環状線より入ってスグの立地。 工業地域のため、作業のしやすい環境です。 業種・条件等…
06-7777-7421
06-7777-7421
受付 9:00〜17:00日曜日・祝日定休
メールお問い合わせ
メールお問い合わせ
LINEお問い合わせ
LINEお問い合わせ

Page top

Page top